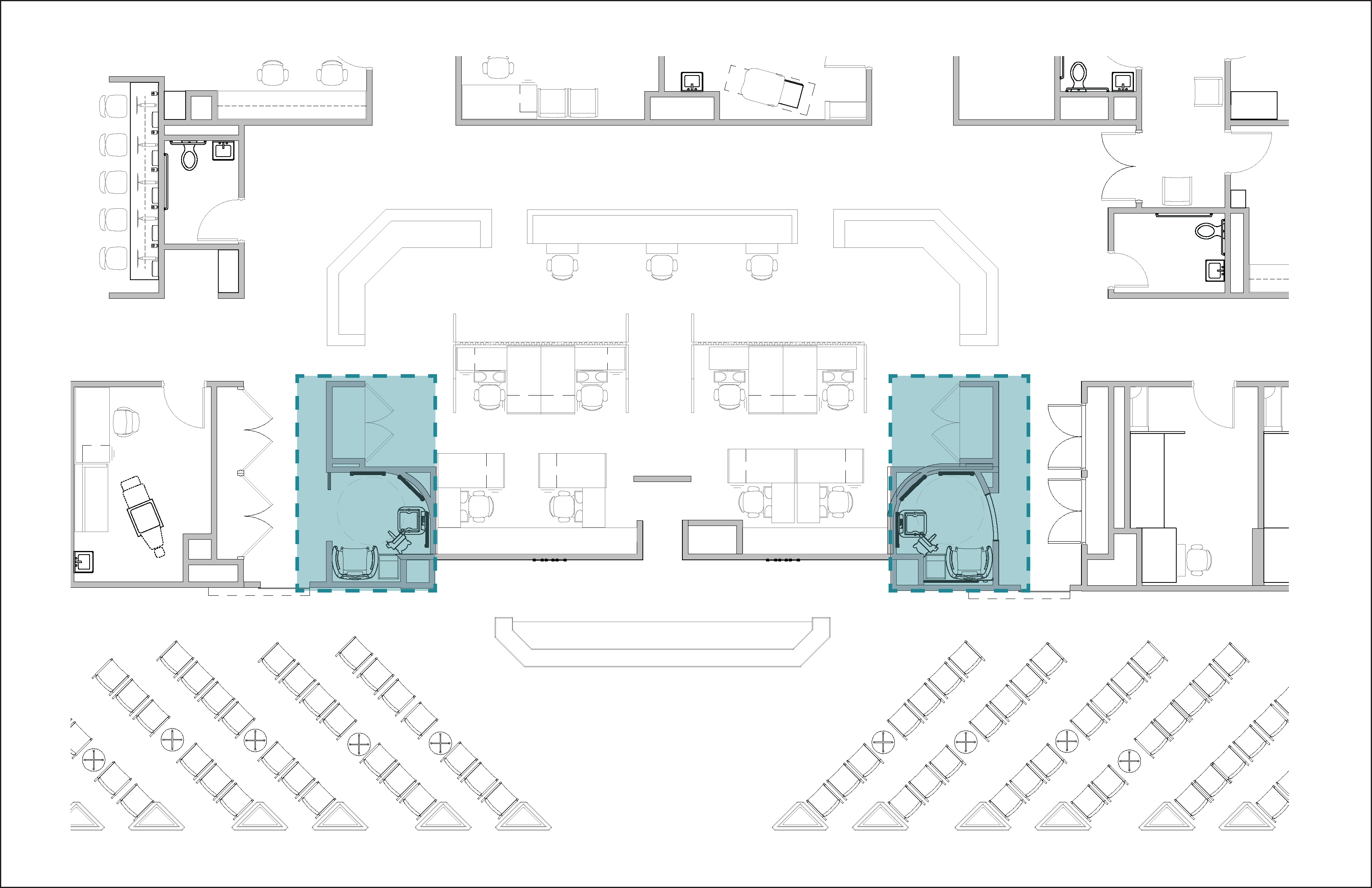
As a result of extensive patient research, we have identified areas within the current vitals stations that could be improved. This graphic illustrates all of our design features and the larger goals we met. You can learn more about our intent and goals by reading the Materials, Furniture, and Lighting pages.
Standing privacy panel
Built in privacy blocker on chair
Rearrangement of furniture
Walls
Interactive artwork
Color and patterns on wall
Textures on chair and table
Glowing light box
Adjustable armrest on chair
Space is ADA with 5ft turn radius
Warm lighting
Biophilic design
Safe cubby for personal items
Sound absorbing material
Acoustic panels
Less distance between waiting room and vitals
Eliminates unnecessary foot traffic in highly congested areas
Sling chair
Cushioned seat
Adjustable headrest
Adjustable armrest










































